| 京王線「西調布」駅徒歩15分。京王線「調布」駅バス11分,停歩3分 | |||||||||||||||||||||||||||||||||||||||||||||||||||||||||||||
![]() |
![]() |
![]() |
|||||||||||||||||||||||||||||||||||||||||||||||||||||||||||
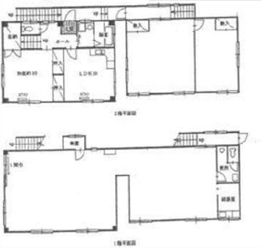
| 外観 | 間取り | 間取り | |||||||||||||||||||||||||||||||||||||||||||||||||||||||||||
![]() |
![]() |
||||||||||||||||||||||||||||||||||||||||||||||||||||||||||||
| 間取り | 地図 | ||||||||||||||||||||||||||||||||||||||||||||||||||||||||||||
| 物件名 | 売工場・売地 | ||
|---|---|---|---|
| 所在地 | 東京都調布市上石原3-56-8 | 交通 | 京王線「西調布」駅徒歩15分。 京王線「調布」駅バス11分,停歩3分 |
| 販売価格 | 7,800 万円 | 表面利回り | - |
| 管理費/修繕積立(月額) | - | 想定年間収入 | - |
| 築年月 | 昭和57年年11月 | 建物構造/階数 | 鉄骨及び軽量鉄骨造3階建 |
| 専有面積または建物面積 | 248.07㎡(約75.04坪) (1階104.43㎡・2階102.33㎡・3階41.31㎡) |
土地面積 | 公簿300.88㎡(約91.01坪) |
| 総戸数 | - | 間取り | - |
| 接道状況 | 北西側約3.6m | 土地権利 | 所有権 |
| その他、維持・管理 | - | 設備 | 電気・上下水道・都市ガス・井戸 |
| 取引様態 | 一般媒介 | 用途地域 | 市街化区域・準工業地域 |
| 現況 | 売主使用中(事務所兼倉庫) | 物件登録日 | 2016/6/28 |
| 引渡し | 相談 | 更新日 | 2016/6/27 |
| 物件番号 | No.150 | 管理会社/管理方式 | - |
| 問い合わせ |
株式会社クラシコ 03-5468-5231 担当 | ||
| 備考 | セットバックあり(2㎡弱)・近隣にゴルフ、テニスクラブ等運動施設あり | ||