| 新築売アパート | ||||||||||||||||||||||||||||||||||||||||||||||||||||||||||||||
![]() |
![]() |
![]() |
||||||||||||||||||||||||||||||||||||||||||||||||||||||||||||
| 地図 | 間取り | 接道状況 | ||||||||||||||||||||||||||||||||||||||||||||||||||||||||||||
| 物件名 | アイコート飛田給 | ||
|---|---|---|---|
| 所在地 | 東京都調布市飛田給2-27-5 | 交通 | 京王線「飛田給」駅徒歩6分。 |
| 販売価格 | 11,925円 万円 | 表面利回り | 6.5% |
| 管理費/修繕積立(月額) | - | 想定年間収入 | 7,752,000円 |
| 築年月 | 平成28年9月 | 建物構造/階数 | 木造サイディング準耐火建築 |
| 専有面積または建物面積 | 190.04㎡ | 土地面積 | 238.36㎡ |
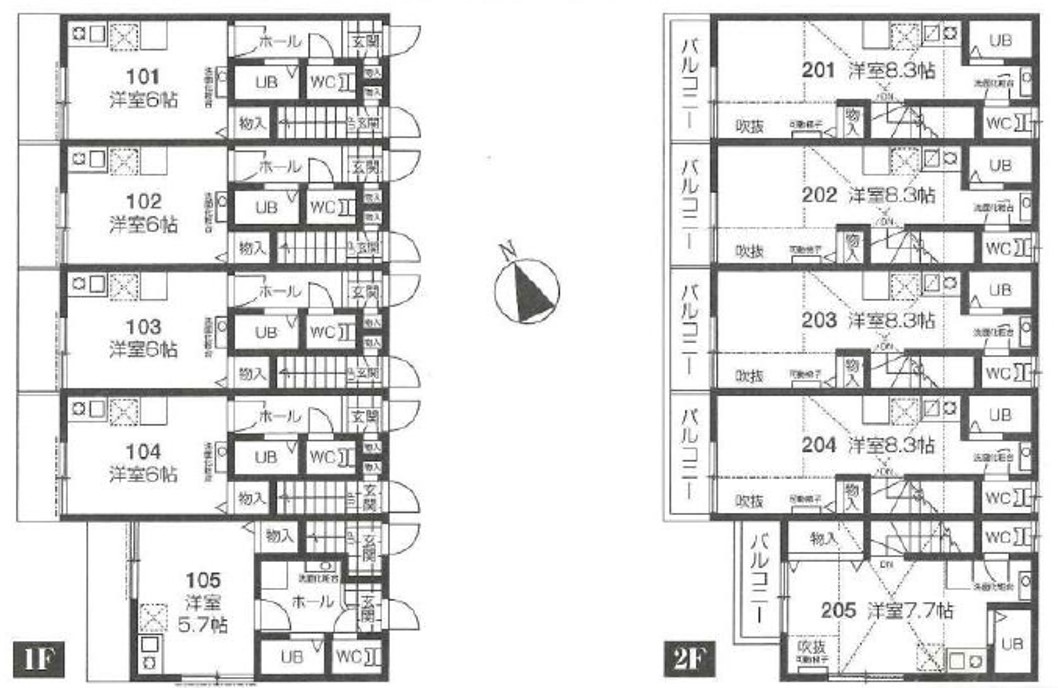
| 総戸数 | 10戸 | 間取り | - |
| 接道状況 | - | 土地権利 | 所有権 |
| その他、維持・管理 | 設備 | - | |
| 取引様態 | 売主 | 用途地域 | 第1種低層住居専用地域 |
| 現況 | - | 物件登録日 | 2016/6/29 |
| 引渡し | 相談 | 更新日 | 2016/6/29 |
| 物件番号 | No.160 | 管理会社/管理方式 | - |
| 問い合わせ |
株式会社クラシコ 03-5468-5231 担当 | ||
| 備考 | |||