| 平成28年2月現在賃貸中♫ | ||||||||||||||||||||||||||||||||||||||||||||||||||||||||||||||
![]() |
![]() |
![]() |
||||||||||||||||||||||||||||||||||||||||||||||||||||||||||||
| 外観 | 地図 | 間取り | ||||||||||||||||||||||||||||||||||||||||||||||||||||||||||||
| 物件名 | 下馬6丁目1棟ビル | ||
|---|---|---|---|
| 所在地 | 東京都世田谷区下馬6丁目36番7号 | 交通 | 急東横線「学芸大学」駅徒歩12分。 |
| 販売価格 | 14,900 万円 | 表面利回り | 6.44% |
| 管理費/修繕積立(月額) | - | 想定年間収入 | 9,600,000円 |
| 築年月 | 1993年3月 | 建物構造/階数 | 鉄骨鉄筋コンクリート造亜鉛メッキ鋼板茸地下1階付地上3階建 |
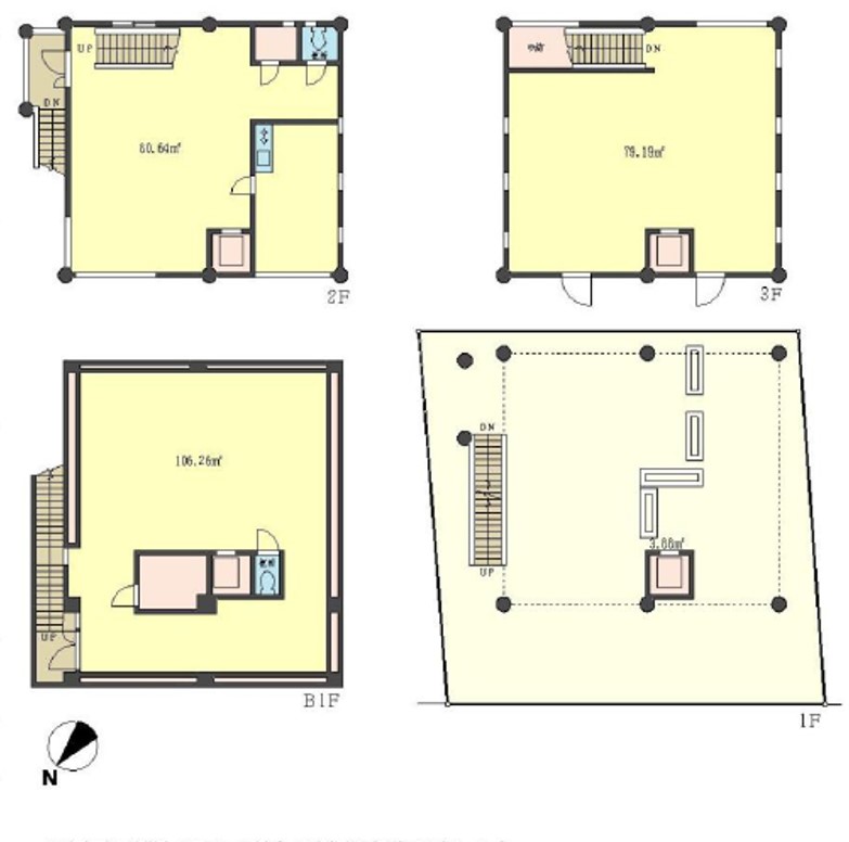
| 専有面積または建物面積 | 269.97㎡(約81.67坪)(1階3.88㎡・2階80.64㎡・3階79.19㎡・地下1階106.26㎡) | 土地面積 | 164.23㎡(約49.68㎡) |
| 総戸数 | 間取り | - | |
| 接道状況 | 北西公道 幅員約7.94m 接道約13.19m | 土地権利 | 所有権 |
| その他、維持・管理 | 設備 | 都市ガス・公営水道・公共下水 | |
| 取引様態 | 専任媒介 | 用途地域 | 第1種低層住居専用地域 |
| 現況 | 賃貸中 | 物件登録日 | 2016/6/29 |
| 引渡し | 相談 | 更新日 | 2016/6/29 |
| 物件番号 | No.159 | 管理会社/管理方式 | - |
| 問い合わせ |
株式会社クラシコ 03-5468-5231 担当 | ||
| 備考 | 日影規制あり | ||